방화유리자동문

본문 바로가기
서브 헤더

방화유리는 특수열처리공법으로 제조된 투명한 갑종 초내열결정화유리를 의미합니다.

방화유리자동문

방화유리자동문 개요

이미지1

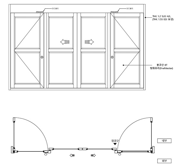
방화유리자동문
(편개-비상탈출문)

이미지2

방화유리자동문
(양개-비상탈출문)

  • 방화문과 자동문의 기능이 합쳐진 제품입니다.
  • 기존의 방화구획에 자동문과 함께 사용해야 하는 방화셔터를 방화유리자동문으로 대체하여 사용 가능합니다.

자동문 하드웨어 구성

자동문 하드웨어
  • 구동모터
  • 컨트롤 박스
  • 특수 Tooth Belt
  • 열처리 특수 레일
  • 비상전원 공급장치(옵션)
  • 전자 매트 스위치(옵션)
  • 레이더 센서
  • 안전 센서
  • 수동 스위치(비상 개폐 스위치)
  • 모터 일체형 Lock
  • SUV 행가 롤러
  • 내화 차연 라스탄 천(일본 아사히 제품)

방화유리자동문 특징

이미지1

방화유리자동문
(편개-비상탈출문)

이미지2

방화유리자동문
(양개-비상탈출문)

01
상시 오픈 유지 상태에서 화재 시 닫힘 기능 가능
02
화재 시 탈출구에 대한 인지도가 높아 침착한 대피 가능
03
비상배터리를 사용해 정전 시 1시간 이상 사용 가능
04
화재 현장 내부가 확인되어 소방 활동이나 구조 활동에 도움

관련특허 및 특징

Certifecate

관련특허

  • 특허: 제 10-1725722호 [하부 문틀이 없는 슬라이딩 방화문]

기존 방화유리자동문은 차연을 위해 하부 문틀이 존재합니다. 그 하부 문틀을 설치하기 위해선, 기존에 바닥할석 작업을 필요로 하며, 하부 문틀로 인해 휠체어 걸림 등의 현상이 발생합니다. 하부 문틀이 없는 슬라이딩 자동 방화문 특허는 그 단점을 보완하기 위해 개발되었으며, 기밀부재의 자채 중력을 통해 자연스럽게 실내 바닥과 맞닿으면서 차연과 기밀 효과를 얻어 방화유리 자동문의 성능을 유지할 수 있게 하는 공법 입니다.

특징

자동문 하드웨어
01
리모델링 공사 시 바닥 철거가 없어 폐기물, 소음, 분진 최소화
02
기존 바닥에 설치가 가능하여 별도의 마감 불필요
03
하부 문틀이 없어 자재 및 화물 이동 시 파손 우려 없음
04
휠체어 등 이동 시 걸림 문제 해결

현대플러스(주) 대표 우상진 주소 충청남도 논산시 가야곡면 가야공단길 14-23 사업자 등록번호 308-81-23866

전화 1599-7584 팩스 02-458-8185 개인정보관리책임자 우상진

Copyright © 현대플러스 주식회사 All rights reserved.